COMUNE: LEGNANO (MI)
COMMITTENTE: STUDIO ING. NICOLA BERLUCCHI (BS)
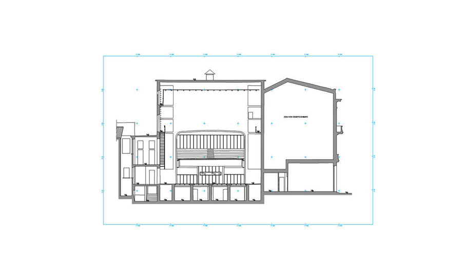
OGGETTO: RILIEVI LASER SCANNER 3D PROPEDEUTICI AD UN PROGETTO DI RESTAURO.
STRUMENTAZIONE: SCANNER 3D LEICA HDS6100, CAMERA CON OTTICHE CALIBRATE CANON EOS 1DX MARK3; SUPPORTO TOPOGRAFICO.
ELABORATI PRODOTTI: PIANTE, SEZIONI E PROSPETTI VETTORIALI PER UNA SCALA 1:50.

Tea
tro
Legn
ano

Legnano - MI - Italy